Australia

Expressions of Interest

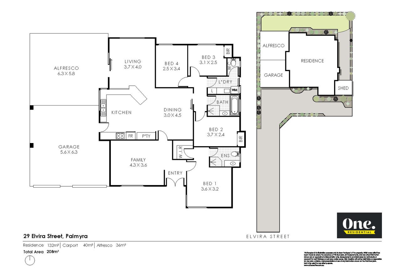
29 Elvira Street, Palmyra, WA 6157

# Location

Description

Welcome to 29 Elvira Street, a gorgeous family entertainers sanctuary nestled away on a massive 633sqm rear block drenched in natural north facing light whilst being set in a premier location just moments to shops, restaurants, parks and cafes.

The pure size of this exclusive rear block provides the rarity of so much extra space for cars/boats/caravans plus a practical remote double garage with drive through capabilities for extended storage with tranquil, lush lawn and garden surrounds.

Step inside and its all here - a timeless and practical design that creates seamless open plan living with a separate front lounge or parents retreat. The central kitchen and family area flows seamlessly to a supersized entertainers paradise with massive pitched alfresco patio surrounded by easy care reticulated grounds and a sense of privacy and security.

The thoughtful floorplan provides a generous master room with walk in robe and stylish renovated ensuite whilst the private separate wing of the home offers 3 more bedrooms, a renovated central family bathroom and renovated laundry area plus all the creature comforts covered with reverse cycle ducted air-conditioning, gas connected and reticulation.

Family homes set on big and private rear blocks are rare to market in this sought after suburb - comfort, practical, space and location!

+ 4 bedroom, 2 bathroom, 2 WC
+ Multiple living and entertaining zones
+ Renovated bathrooms
+ Large and functional kitchen and family area
+ Ducted reverse cycle air-conditioning, security and shutters
+ Outstanding outdoor entertaining capabilities
+ Remote double garage with practical rear access
+ Large side parking for boat/extra cars/caravan
+ Shed storage
+ Wonderful school zones and amenities at your doorstep
+ Private and exclusive supersized rear 633 sqm block

For more information, please contact listing agent Michael Forzatti on 0419 904 907.

Disclaimer:
* The above information is provided for general information purposes only and may be subject to change. No warranty or representation is made as to the accuracy of the information and all interested parties should make their own independent enquiries relating to the information provided and place no reliance on it. Any chattels depicted or described in the information are not included in the sale unless specified in the Offer and Acceptance.

View More #

Floor Plans

Location

  • Contact the agency

    To request an inspection

  • # Call # Email

Michael Forzatti

Agent Name

# Report Listing

Looking for a property?

  • Top listings
  • Investment
  • Development
  • Personal home
  • Price reports
  • Suburb reports

Do you own a property?

  • Place a free listing
  • Services for private advertisers
  • Guide to selling your home
  • Insurance
  • Improve the photos of your listing
  • Value your property for free

Are you a real estate proffesional?

  • Publish your agencies properties
  • Already a client? Log into your account
  • Advertising on Australian Real Estate
  • Australian Real Estate data technology for property insights
  • Real Estate courses